双行审公〔2025〕37号
根据《楚雄州实施“阳光规划”的意见》,现对以下建设项目行政许可进行批前公示,社会各界人士若有意见和建议,请在公示期内向公示组织电话或书面反映。
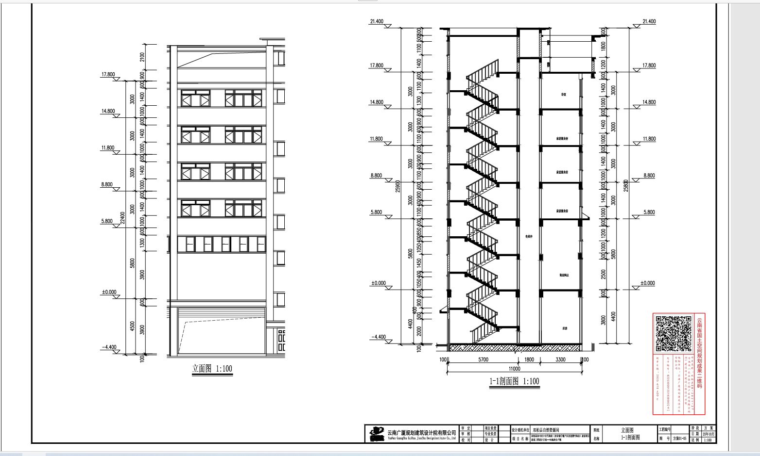
项目名称:双柏县SB-2021-22号地块(农业银行棚户区改造腾空地块)建设项目
申请单位(个人):李勇
许可事项:建设工程规划许可证
公示类别:批前公示
公示时间:2025年11月11日 至2025年11月17日
公示地点:项目所在地、县城(乡镇)主要街道
公示网址:双柏县人民政府门户网站
公示组织:双柏县行政审批局
意见反馈联系电话:0878-7711191
项目简介:(单位:平方米、万元)
项目位置:双柏县城查姆大道(农行旁)
用地性质:居住用地
用地面积:108平方米
建筑面积:662.56平方米
投资规模:99.38万元
附图:总平面布置图、立面图、剖面图、鸟瞰图
双柏县行政审批局
2025年11月11日


