双行审公〔2024〕13号
根据《楚雄州实施“阳光规划”的意见》,现对以下建设项目行政许可进行批前公示,社会各界人士若有意见和建议,请在公示期内向公示组织电话或书面反映。
项目名称:查姆悦府建设项目(一期)
申请单位(个人):双柏凯骏置业有限公司
许可事项:建设工程规划许可证
公示类别:批前公示
公示时间:2024年04月24日 至2024年04月30日
公示地点:项目所在地、乡镇主要街道
公示网址:双柏县人民政府门户网站
公示组织:双柏县行政审批局
意见反馈联系电话:0878-7711191
项目简介:(单位:平方米、万元)
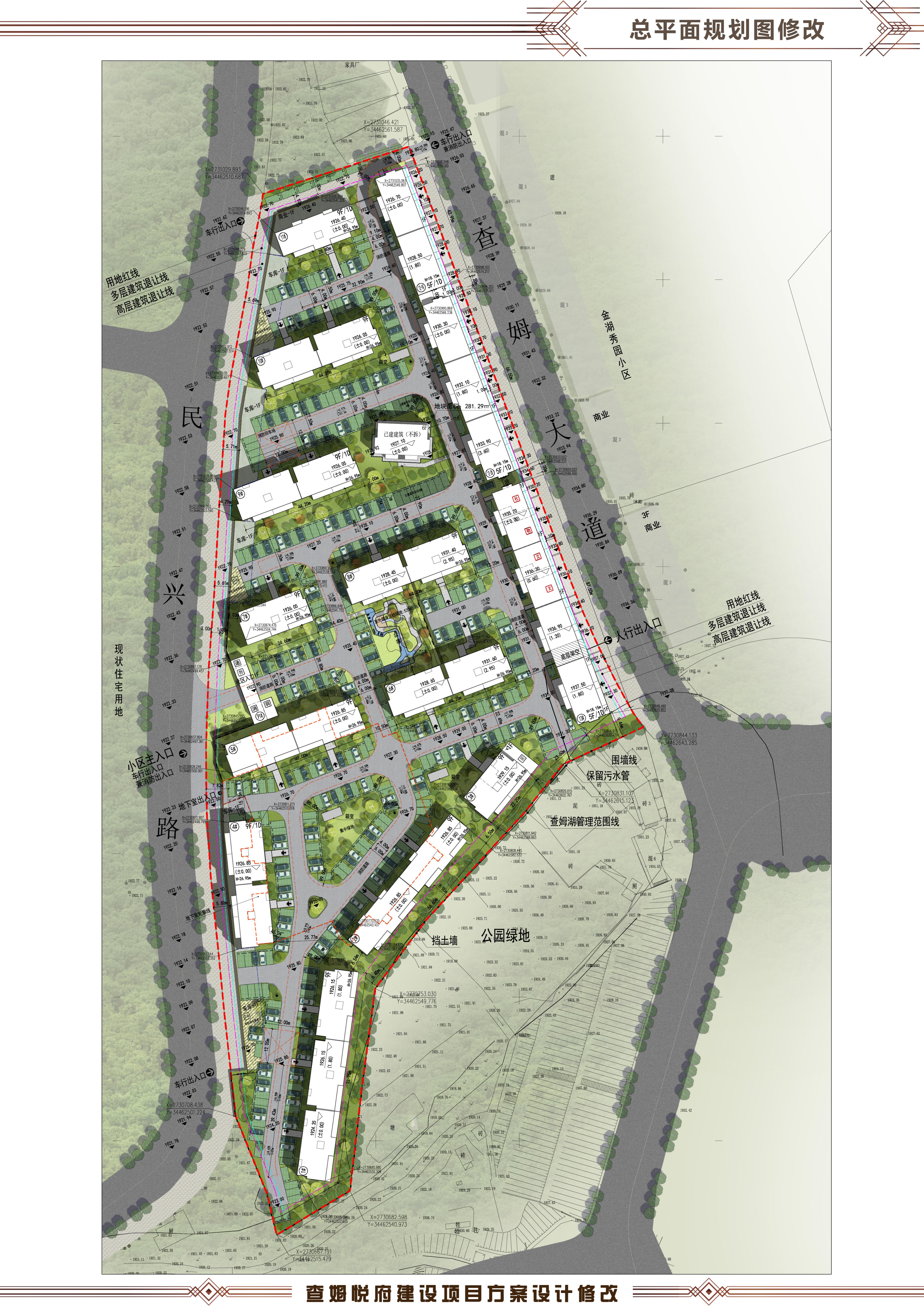
项目位置:双柏县城虎乡大道与查姆大道交叉口南侧
用地性质:商住用地(BR)
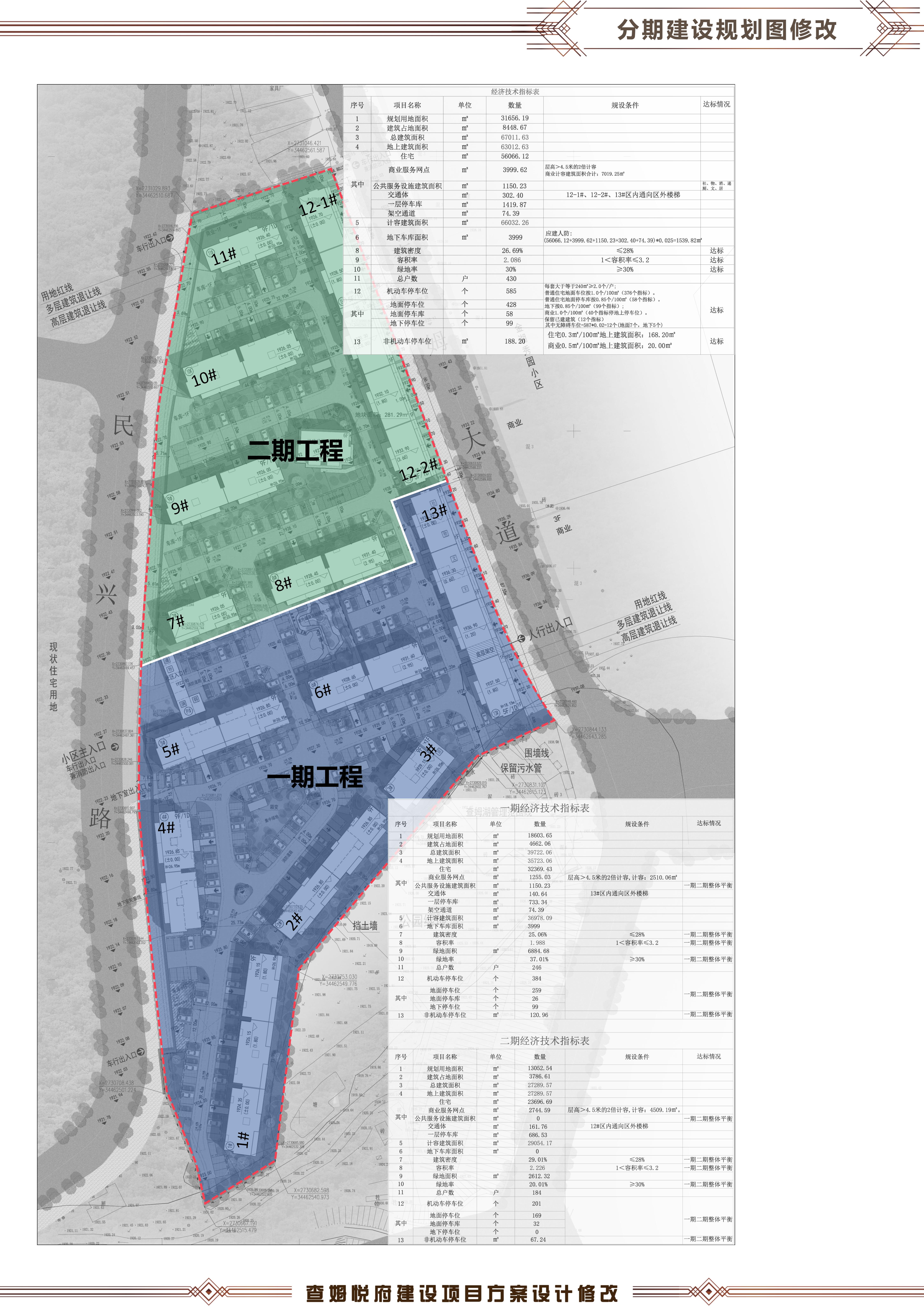
用地面积:18603.65平方米
建筑面积:39722.06平方米(其中地下:3999平方米;地上35723.06平方米)
投资规模:16489.33万元
附图:区域位置图、总平面图、分期建设图、鸟瞰图
双柏县行政审批局
2024年04月24日



